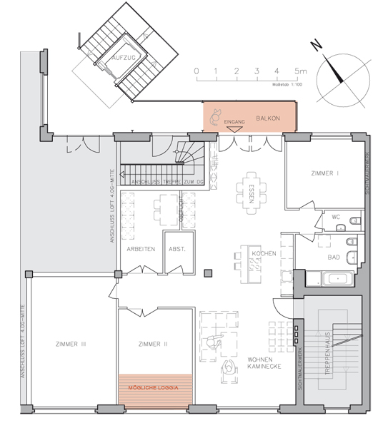
Karl-Kunger-Straße 59b • 12435 Berlin • Alt-Treptow

grundriss 4og  
4.OG links  •  155,00 m2   •  1-5 Räume
Der dargestellte Grundriss ist veränderbar.

Diese Fläche bietet sich an, mit dem DG links
zur Maisonette zusammengelegt zu werden.
Preis: 350.000,00 EURO

eingang wohnen
schlafen kueche
Bilder aus dem Musterloft (Etage tiefer)