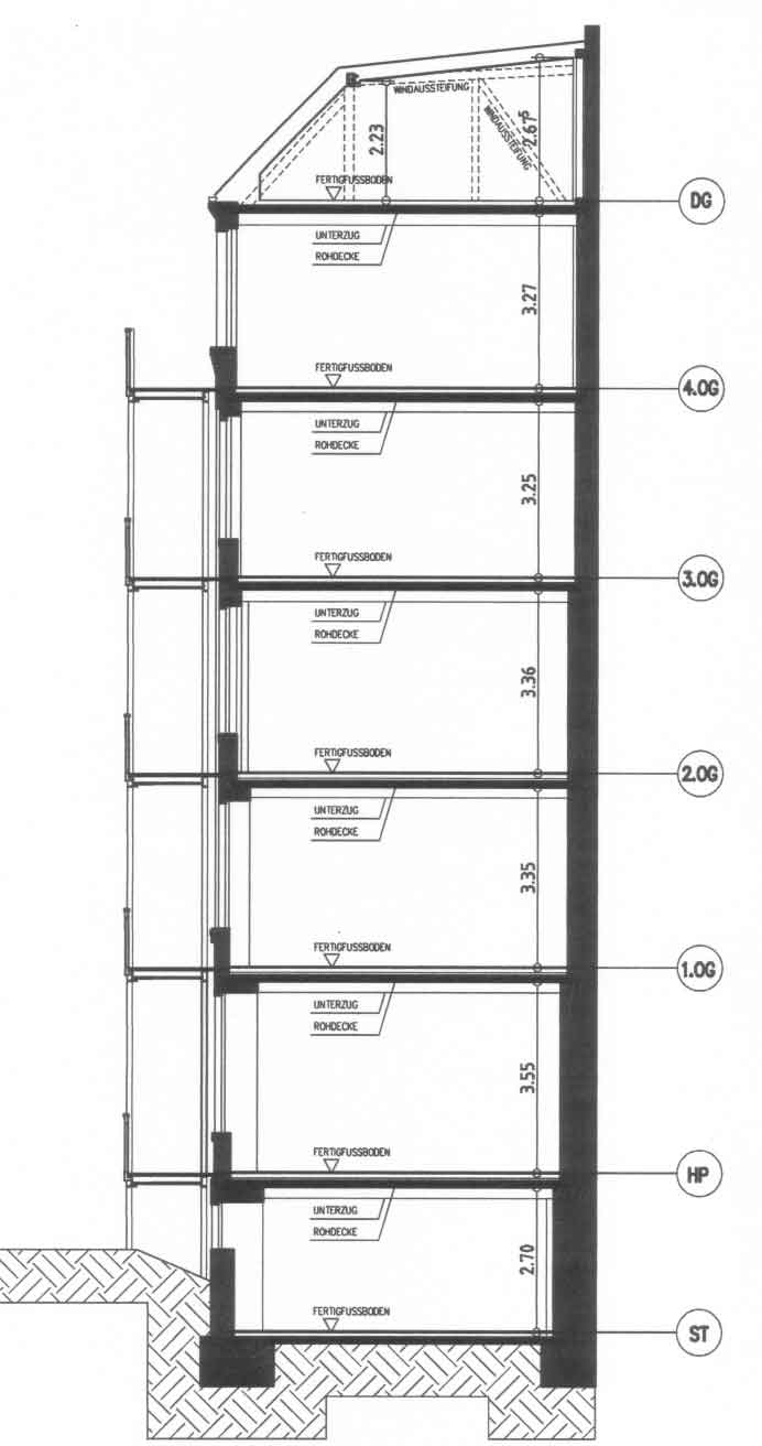
----Karl-Kunger-Straße 59b 12435 Berlin • Alt-Treptow   •   Schnitt durch den Seitenflügel
 
      Die lichten Raumhöhen wurden zwischen dem Fertigfußboden und der UK.Rohdecke gemessen
      und gelten auch für die Loftetagen im Hauptgebäude.